ロゴ画像

03-6427-1827

受付時間 9:00 - 18:00

路面店の居抜き物件・貸店舗・テナントの一覧

1230

1~30件表示

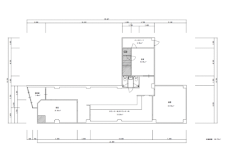
  • 【墨田区 居抜き物件】東向島駅徒歩4分/1階・約25坪/間口広く視認性◎/居酒屋居抜き/墨田区で飲食店開業向けテナント

    【墨田区 居抜き物件】東向島駅徒歩4分/1階・約25坪/間口広く視認性◎/居酒屋居抜き/墨田区で飲食店開業向けテナント New

    2026年04月03日

    賃料

    286,000

    (坪@ 11,282円)

    階数/面積 1階 / 25.35坪
    現業態 居酒屋
    造作代金 相談
    条件 居抜き
    Point

    東向島駅徒歩4分。 住宅地の生活導線上に位置し、日常利用の飲食需要を安定的に取り込めるポジションにある居抜き物件のご紹介です。 本物件の最大の特徴は、1階路面かつ間口が広く、視認性に優れている点にあります。 通行者からの認知が取りやすく、看板やファサードの作り込みによって、来店動機を自然に喚起できる立地です。 東向島駅の1日平均乗降人員は約19,000人規模。 大型繁華街のような爆発的集客ではないものの、居住人口を背景とした安定的な外食需要が見込めるエリアであり、リピートを軸に売上を積み上げる業態に適しています。 さらに、半径500m圏内には飲食店が134店舗、そのうち居酒屋は68店舗存在しています。 一見すると競合が多いように見えますが、これは裏を返せば**「飲食需要が成立しているエリア」である証拠**です。 特に本物件のように視認性が高い路面店は、業態やコンセプト次第で十分に差別化が可能です。 実際、このエリアでは ・仕事帰りの一杯需要 ・近隣住民の外食利用 ・週末の軽い集まり需要 といった複数の需要が分散しており、特定の時間帯に依存しすぎない営業が可能です。 ■約25坪という“売上を作りやすいサイズ” 本物件は約25.35坪。 個人開業から2店舗目出店まで、幅広く対応できるバランスの良いサイズです。 カウンター+テーブル構成により、 ・少人数の回転需要 ・グループ利用 の両方を取り込むことができ、客単価と回転率の設計がしやすい点も特徴です。 また、店内レイアウトの自由度も高く、業態に応じた柔軟な設計が可能です。 ■居抜き物件ならではの初期投資メリット 本物件は居酒屋の居抜きのため、既存設備を活用することで初期投資を抑えて出店可能です。 一般的なスケルトン出店の場合、 内装費:約1,000万前後(坪単価40〜60万円) 厨房設備:200〜300万円 合計:約1,200万円前後 一方、本物件では造作内容次第ではありますが、 👉 初期投資を大幅に圧縮できる可能性があります。 開業時の資金効率という観点でも、非常に現実的な選択肢となる物件です。 ■売上シミュレーション(現実ライン) 【想定席数】 約30席前後 【モデルケース①(安定型)】 客単価:2,800円 回転数:1.3回転 来店数:約39名/日 👉 日商:約109,000円 👉 月商:約327万円 【モデルケース②(伸ばす運営)】 客単価:3,200円 回転数:1.6回転 来店数:約48名/日 👉 日商:約153,000円 👉 月商:約459万円 この立地であれば、 ・平日:地域住民+帰宅導線需要 ・週末:グループ利用 を組み合わせることで、安定と上振れの両立が可能です。 ■この物件が向いている方 ・墨田区エリアで飲食店開業を検討している方 ・初期投資を抑えてスタートしたい方 ・地域密着型で安定経営を目指したい方 ・居酒屋、定食、ラーメン、カフェ等で出店を検討中の方 ■まとめ 本物件は 「駅徒歩4分 × 1階路面 × 視認性 × 約25坪 × 居抜き」 という、飲食店出店において重要な要素がバランス良く揃った物件です。 特に、視認性の高さと間口の広さは、同条件帯の中でも再現性の高い売上を作りやすいポイントです。 なお、こうした「1階路面×適正坪数×居抜き」の物件は、同エリア内でも流通数が限られます。 また、検討が重なることで条件が変動するケースも少なくありません。 図面や写真では判断できない「導線」「視認性」「周辺環境」は、現地でしか確認できない要素です。 少しでもご興味をお持ちいただけましたら、 具体的な検討段階でなくても問題ございませんので、ぜひ一度内見にてご確認ください。 お問い合わせ・内見のご相談をお待ちしております。

  • 【関内居抜き物件】関内駅徒歩5分/角地1階・約16坪/ネパール料理居抜き/競合密集外ポジション・観光導線◎(横浜市中区・飲食店開業向け)

    【関内居抜き物件】関内駅徒歩5分/角地1階・約16坪/ネパール料理居抜き/競合密集外ポジション・観光導線◎(横浜市中区・飲食店開業向け) New

    2026年04月01日

    賃料

    308,000

    (坪@ 18,953円)

    JR根岸線
    関内駅 徒歩5分
    階数/面積 1階 / 16.25坪
    造作代金 2,200,000円
    条件 居抜き
    Point

    関内駅徒歩5分、角地1階に位置するネパール料理の居抜き物件です。約16.25坪の使いやすいサイズ感で、視認性と導線のバランスが取れたポジションにあります。横浜市中区・関内エリアで飲食店開業を検討されている方にとって、立地の特性を活かした店舗展開が可能な内容です。 関内エリアは半径500m圏内に約1,300店舗以上の飲食店が集まる横浜有数の飲食集積地ですが、 本物件はその中でも密集エリアの中心からやや外れたポジションに位置しています。 この点が大きな特徴であり、競合が集中する通りで埋もれるのではなく、「狙って来店する導線」を作りやすい立地と言えます。 さらに本物件は角地に位置しているため、通行人の視認性を確保しやすく、 看板やファサードの設計によって店舗認知を高めやすい点も見逃せません。 実際に現地で確認すると、どの方向からの人の流れを取り込むか、 どの位置にサインを設置するかといった具体的な出店戦略がイメージしやすいロケーションです。 また、周辺には横浜スタジアム、横浜BUNTAI、横浜武道館といった集客施設が点在しており、 イベント開催時には人の動きが発生します。 加えて、近隣にはビジネスホテルや宿泊施設も散在しているため、 観光・宿泊客の取り込みも視野に入れることができます。 日常利用だけでなく、タイミングによって来店動機が変わるエリア特性は、売上構成の幅を持たせる上で有利に働きます。 本物件はネパール料理店の居抜きでの募集となっており、 厨房設備や内装の一部を活用できる可能性があります。 スケルトンからの出店と比較して、初期投資や準備期間の調整がしやすく、開業までの流れを組み立てやすい点も特徴です。 現況業態に限らず、業態変更についても検討余地があり、エリア特性に合わせたコンセプト設計が可能です。 約16坪というサイズは、客席数と回転率のバランスを取りやすく、 ランチ・ディナー双方の営業にも対応しやすいスケールです。 過度な固定費負担になりにくい点も含め、現実的な出店計画を立てやすい条件帯に収まっています。 関内というエリアは、飲食店数が多いからこそ単純な業態だけでは埋もれてしまう一方で、 立地の取り方やターゲット設定によって結果が大きく変わるマーケットでもあります。 本物件のように「競合密集の中心ではない位置」「視認性を確保できる角地」「観光・イベント導線を拾える立地」が揃うケースは限られており、 出店戦略を組み立てやすいポジションといえます。 この物件は、条件だけで比較して判断するというよりも、実際に現地に立つことで判断が進むタイプです。 現地では、 ・どの層をターゲットにするか ・どの時間帯で売上を組むか ・どの業態・価格帯が適しているか といった点が、具体的にイメージできる可能性があります。 関内エリアでの出店を検討されている方にとって、現実的な選択肢となり得る一件です。 少しでも条件に合う場合は、検討中に動きが出る可能性もあるため、早めの現地確認をご検討ください。 このタイミングでの判断が、出店可否を分ける可能性があります。 この立地は、「どこで戦うか」を決めることで結果が変わる物件です。現地でその感覚を掴んでください。

  • 【東白楽 居抜き物件】東急東横線・東白楽駅徒歩4分/一棟貸し24.62坪・イタリアン居抜き/ダムウェーター付・重飲食相談可/横浜市神奈川区で飲食店開業・独立開業向け店舗

    【東白楽 居抜き物件】東急東横線・東白楽駅徒歩4分/一棟貸し24.62坪・イタリアン居抜き/ダムウェーター付・重飲食相談可/横浜市神奈川区で飲食店開業・独立開業向け店舗 New

    2026年04月02日

    賃料

    297,000

    (坪@ 12,063円)

    階数/面積 1-2階 / 24.62坪
    造作代金 3,300,000円
    条件 居抜き
    Point

    東急東横線・東白楽駅徒歩4分の一棟貸しイタリアン居抜き物件。約24.62坪でダムウェーター付、重飲食相談可能。横浜市神奈川区・東横線沿線で飲食店開業・独立開業を検討中の方に適した店舗です。 東急東横線「東白楽駅」徒歩4分という、横浜駅至近エリアに位置する一棟貸しのイタリアン居抜き物件です。 東白楽駅は各駅停車駅ながら、横浜駅まで約3分というアクセス性を持ち、 通勤・通学動線上にある住宅エリアとして安定した人の流れが見込めます。 東横線沿線は日吉・菊名・武蔵小杉など出店検討エリアとして人気が高い一方で、 賃料水準や競争環境の観点から出店ハードルが上がりやすい傾向があります。 その中で東白楽エリアは、利便性を確保しながらも比較的現実的な出店計画を立てやすいポジションにあり、 「東横線で開業したいが条件面で調整が必要」という方にとって検討しやすいエリアです。 本物件は一棟貸しでの募集となっており、フロアの使い分けや動線設計の自由度が高い点が特徴です。 客席構成や厨房配置、バックヤードの取り方などを柔軟に設計できるため、業態に合わせた店舗づくりが可能です。 さらにダムウェーターが設置されており、上下階を活用したオペレーションにも対応しやすい仕様となっています。 これにより、仕込み・提供・片付けの導線を分離しやすく、効率的な店舗運営を構築できる可能性があります。 現況はイタリアンの居抜きであり、厨房設備や内装のベースを活用することで、 スケルトンからの出店と比較して初期投資や準備期間の負担を抑えた開業が見込めます。 また、重飲食についても相談可能なため、ラーメン・焼肉・中華など幅広い業態での検討余地がある点も魅力です。 周辺環境としては、東白楽駅半径500m圏内に飲食店が約97店舗存在し、 そのうちイタリアンは17店舗と一定の競争環境があります。 一方で、これは外食需要が成立しているエリアであることの裏付けでもあり、 業態や価格帯、コンセプトの設計次第で差別化を図る余地があります。 約24.62坪という広さは、客席数と回転率のバランスを取りやすく、 ランチ・ディナー双方の売上構築にも対応可能なサイズ感です。 一棟貸しという特性を活かすことで、時間帯別の使い分けや客単価設計の幅も広がります。 また、本エリアは住宅利用と通勤動線が重なる特徴があり、 日常利用と目的来店の双方を取り込める点も見逃せません。 特定の時間帯に偏らない売上構成を目指しやすく、安定した営業基盤の構築につながります。 「東横線沿線での開業」という軸を持ちながら、現実的な出店条件を探している方にとって、 本物件は具体的な選択肢となり得る内容です。 東横線沿線で出店可能な条件帯の物件は、 検討している間に動きが出やすい傾向があります。 特に本物件は、 ・一棟貸しによる自由度 ・重飲食相談可能な条件 ・出店計画を立てやすい賃料帯 この3点が揃っており、判断までのスピードが早いケースも見受けられます。 実際に現地でご確認いただくことで、出店後のイメージが具体化しやすいため、 少しでも条件に合致する場合は、このタイミングでのご検討をおすすめいたします。

  • 【日暮里 居抜き物件】日暮里駅徒歩1分/1階路面14坪・韓国料理店居抜き/視認性良好・内装状態良好/荒川区で飲食店開業・独立開業向け店舗(JR山手線・京成本線)

    【日暮里 居抜き物件】日暮里駅徒歩1分/1階路面14坪・韓国料理店居抜き/視認性良好・内装状態良好/荒川区で飲食店開業・独立開業向け店舗(JR山手線・京成本線) New

    2026年04月01日

    賃料

    528,000

    (坪@ 37,714円)

    階数/面積 1階 / 14坪
    現業態 焼肉
    造作代金 相談
    条件 居抜き
    Point

    日暮里駅徒歩1分の1階路面・韓国料理店居抜き物件。約14坪で視認性良好、看板設置可能。日暮里・荒川区で飲食店開業・独立開業を検討中の方に適した店舗です。 日暮里駅徒歩1分という、駅前立地の中でも特に優位性の高いポジションに位置する1階路面の韓国料理店居抜き物件です。 「徒歩1分」という距離は単なる駅近ではなく、駅利用者の動線上に自然に組み込まれる立地であり、 日常的な来店機会の創出が期待できる条件といえます。 日暮里駅はJR山手線・京浜東北線・常磐線、京成本線、日暮里・舎人ライナーが利用可能なターミナル性を持つ駅であり、 1日あたり約25万〜26万人規模の利用があります。 乗換利用も多く、時間帯を問わず人の流れが発生しているため、ランチ・ディナー双方での売上構築がしやすいエリアです。 本物件はその駅から徒歩1分という立地に加え、1階路面店舗であるため視認性の確保がしやすく、 看板設置による店舗認知の向上も図りやすい点が特徴です。 実際に現地に立つと、通行人の流れや目線の位置、看板の有効な設置位置などが具体的にイメージしやすく、 出店後の営業戦略を描きやすい環境といえます。 周辺環境としては、半径500m圏内に飲食店が345店舗存在し、 そのうち韓国料理店は26店舗、焼肉店は32店舗が営業しています。 一定の競合がある一方で、それだけ外食需要が成立しているエリアであり、 特に日暮里は多様な客層が流入するため、業態の方向性次第で差別化を図る余地もあります。 本物件は韓国料理店の居抜きでの募集となっており、厨房設備や客席レイアウトのベースが活用可能な点も見逃せません。 スケルトンからの出店と比較すると、内装・設備にかかる初期投資や準備期間の負担を抑えた形で開業を進められる可能性があります。 約14坪というサイズは、回転率を重視した効率的な店舗運営にも適しており、 コンパクトながら売上を組み立てやすい規模感です。 カウンター主体の構成や少人数オペレーションにも対応しやすく、 独立開業や初出店にも現実的な選択肢となります。 また、日暮里エリアは観光・乗換・居住といった複数の人流が交差する特徴があり、 曜日や時間帯による売上の偏りが出にくい点も魅力です。 日常利用と目的来店の双方を取り込めるため、安定した営業基盤を構築しやすい環境といえます。 「駅徒歩1分」「1階路面」「居抜き」という条件が揃う物件は、 常時市場に出ているわけではありません。 特に日暮里エリアにおいては、立地条件と出店コストのバランスが取れた物件は限られており、 検討から判断までのスピードが求められるケースもあります。 この条件帯の「日暮里駅徒歩1分・1階路面・居抜き」は、 検討している間に動く方が出やすいタイプの物件です。 特に本物件は、 ・立地 ・視認性 ・出店準備のしやすさ この3点が揃っており、出店判断までのスピードが早い傾向があります。 実際に現地でご確認いただくことで、出店後のイメージがより具体化しやすく、 少しでも条件に合致する場合は、早めの内見をご検討ください。 このタイミングでのご確認をおすすめいたします。

  • 【川口 居抜き物件】川口駅徒歩5分/1階路面21.54坪・ラーメン店居抜き/視認性良好・即営業可/独立開業・ラーメン店開業向け店舗(京浜東北線・埼玉県川口市)

    【川口 居抜き物件】川口駅徒歩5分/1階路面21.54坪・ラーメン店居抜き/視認性良好・即営業可/独立開業・ラーメン店開業向け店舗(京浜東北線・埼玉県川口市) New

    2026年04月01日

    賃料

    385,000

    (坪@ 17,873円)

    階数/面積 1階 / 21.54坪
    現業態 ラーメン
    造作代金 相談
    条件 居抜き
    Point

    川口駅徒歩5分の1階路面ラーメン店居抜き物件。約21.54坪で視認性良好、居抜きのため初期コストを抑えた出店が可能。川口エリアで独立開業・ラーメン店開業を検討されている方に適した店舗です。 川口駅徒歩5分、京浜東北線利用可能という高い集客ポテンシャルを持つ立地に、本物件は位置しています。 JR川口駅は1日平均乗車人員約75,000人、乗降客数に換算すると約14万〜15万人規模の利用があるエリアであり、 都内へのアクセスの良さから居住人口・就業人口ともに安定した流入が見込めます。 本物件はその川口駅から徒歩5分圏内に位置しており、日常導線上の人通りを取り込みやすい点が特徴です。 さらに1階路面店舗であるため、通行人からの視認性も確保されており、看板・ファサード次第で新規来店動機の創出が期待できます。 周辺環境としては、半径500m圏内に飲食店が約337店舗存在し、 そのうちラーメン店は33店舗。競合が一定数存在する一方で、それだけラーメン需要が成立しているエリアであることを示しています。 ラーメン業態は立地依存度が高いビジネスですが、本エリアは「回転型」「単価調整型」いずれの戦略にも対応可能なマーケットです。 本物件はラーメン店の居抜きでの募集となっており、厨房設備やレイアウトのベースが活用可能なため、 スケルトンからの出店と比較して初期投資を抑えた開業が見込めます。 特に独立開業や初出店の方にとっては、設備投資の負担軽減は重要な判断材料となります。 約21.54坪という広さは、カウンター主体の効率的なオペレーション設計にも、 テーブル席を組み合わせた客単価重視型の設計にも対応可能なサイズ感です。 ランチ・ディナー双方での売上構築がしやすく、時間帯別の売上最大化を狙える点も評価できます。 また、川口エリアはベッドタウンとしての性質が強く、昼は近隣勤務者、 夜は居住者といった二層の需要を取り込めるため、売上の安定性が見込める点も見逃せません。 特にラーメン業態は回転率とリピート率が重要となるため、このような人口構造との相性は良好です。 「駅徒歩5分」「1階路面」「ラーメン居抜き」という条件が揃う物件は、 常時市場に出ているわけではありません。 さらに本物件は、開業コストと立地バランスの観点からも現実的な出店判断がしやすい点が強みです。 これからラーメン店開業を検討されている方、川口エリアでの独立開業をお考えの方にとって、 本物件は具体的な事業イメージを描きやすい条件が整っています。 この物件は「検討」ではなく「現地確認」で判断が変わるタイプです。 立地の導線、視認性、周辺の人の流れは、写真や文章だけでは判断しきれません。 実際に現地に立つことで、 ・どの位置に看板を出すか ・どの客層を取り込むか ・どの業態コンセプトが最適か ここまで一気に具体化します。 条件が合う方から順に検討が進む可能性がありますので、 まずは一度、現地での内見をおすすめいたします。 この物件の最大のポイントは、 「すぐに営業を開始できる状態に近い」点です。 ラーメン店の居抜きであるため、 厨房導線や設備配置はすでに完成された形がベースとなっており、 出店までの準備期間を短縮できる可能性があります。 新規開業において最も時間とコストがかかる「設備構築」「レイアウト設計」を一から行う必要がない点は、大きなメリットといえます。 一般的にスケルトンからの出店では、内装・厨房設備で数百万円規模の投資が必要になるケースもありますが、 本物件はその負担を抑えた形でのスタートが検討可能です。 また、ラーメン業態はオペレーション設計と回転率が重要となるため、 既存レイアウトを活かせる点は、開業初期の安定運営にも寄与します。 加えて、川口エリアは単身者・ファミリー層ともに厚く、日常的な外食需要が見込めるマーケットです。 駅徒歩5分圏内という立地条件と組み合わせることで、安定した集客導線を確保しやすい点も本物件の特徴です。 この条件帯の「駅徒歩5分・1階路面・ラーメン居抜き」は、 検討している間に動く方が出やすいタイプの物件です。 特に本物件は、 ・立地 ・業態適合 ・初期コストバランス この3点が揃っており、出店判断までのスピードが早い傾向があります。 現地での確認により、出店後のイメージが一気に具体化する可能性がありますので、 少しでも条件に合致する場合は、早めの内見をご検討ください。

  • 【千代田区 神保町 居抜き】駅徒歩4分/1階6坪・賃料22万円/神保町交差点至近の飲食店居抜き店舗(小規模開業・一人営業向け)

    【千代田区 神保町 居抜き】駅徒歩4分/1階6坪・賃料22万円/神保町交差点至近の飲食店居抜き店舗(小規模開業・一人営業向け) New

    2026年03月30日

    賃料

    220,000

    (坪@ 36,666円)

    階数/面積 1階 / 6坪
    現業態 寿司・割烹
    造作代金 550,000円
    条件 居抜き
    Point

    千代田区神保町駅徒歩4分、交差点至近の飲食店居抜き物件。1階6坪・賃料22万円の小規模店舗で、個人開業や低投資出店に最適。周辺は飲食店729件が集積する商業エリアで、ランチ・ディナーともに安定した需要が見込めます。神保町エリアで居抜き物件をお探しの方は必見です。 ■ 神保町駅徒歩4分|都心有数の“安定集客エリア” 本物件は、都営三田線・新宿線、東京メトロ半蔵門線が利用可能な神保町駅から徒歩4分という好立地に位置しています。 神保町駅は1日平均約20万人以上が利用する都心有数の乗換駅であり、周辺には大学・専門学校・オフィスが密集しています。 そのため、 ・平日ランチ需要(ビジネス層・学生) ・夜の軽飲食需要 ・土日の古書店街・観光客需要 といった“曜日・時間帯を問わず売上を作れるエリア”である点が最大の強みです。 ■ 神保町交差点至近|導線上に乗る立地 神保町交差点すぐというポジションは、単なる駅近とは異なり“人の流れの上に店舗を構えられる立地”です。 特に神保町エリアは、 ・駅〜大学 ・駅〜オフィス ・駅〜飲食店街 といった導線が明確で、通行量が安定しています。 この「通り道にある」という特性は、小規模店舗にとっては大変重要であり、広告に頼らず自然集客を見込める立地と言えます。 ■ 1階6坪|低投資・高回転モデルに最適 本物件は約6坪のコンパクトな店舗です。 一見すると小さく感じるかもしれませんが、現在の飲食市場においてはむしろ優位性があります。 ・初期投資を抑えられる ・家賃負担が軽い ・人件費を抑えられる(ワンオペ可) ・回転率を高めやすい つまり「小さく始めてしっかり利益を残す」モデルに適しています。 特に、 ・ラーメン ・立ち飲み ・寿司 ・テイクアウト併用業態 などとは非常に相性が良いサイズ感です。 ■ 賃料22万円|神保町エリアでは“現実的ライン” 神保町駅徒歩4分・交差点至近という立地でありながら、賃料は22万円(税込)。 坪単価ベースでも都心一等地としては抑えられており、 ・固定費を抑えた経営 ・利益を残す設計 が可能な水準です。 特に個人開業・独立初期においては、この“家賃バランス”はたいへん重要です。 ■ 飲食店729件の商圏|需要が証明されたエリア 神保町駅半径500m圏内には、飲食店が約729件存在しています。 これは裏を返せば、 「これだけの店舗が成立している=需要がある」 という明確な証拠です。 さらに内訳を見ると、和食系が397件と多く、寿司・割烹・居酒屋などの業態との親和性が高いエリアであることが分かります。 つまり、ゼロから市場を作る必要はなく、“既にある需要を取りにいくフェーズ”に入れる立地です。 ■ 居抜き|スピード開業が可能 本物件は飲食店居抜きのため、 ・内装工事コストの削減 ・開業までの期間短縮 ・設備の流用 が可能です。 これにより、 「良い立地を見つけた瞬間に動けるかどうか」 が勝負になる飲食出店において、非常に有利な条件となります。 ■ 総評|“勝ち筋が見える小箱物件” 本物件は、 ・神保町駅徒歩4分 ・交差点至近 ・1階 ・6坪 ・賃料22万円 ・居抜き という、飲食店開業において重要な要素がバランス良く揃っています。 特に、 「大きく当てる」ではなく 「堅実に回して利益を残す」 という戦略を取る方にとっては、非常に再現性の高い物件です。 この条件の物件は、正直“検討している間に無くなるタイプ”です。 神保町というエリア特性上、 ・駅近 ・小箱 ・適正賃料 ・居抜き が揃う物件は流通量が多くありません。 特に今回のような「個人開業で成立するサイズ×立地」は、探してもなかなか出てこないのが実情です。 そしてこの手の物件は、 👉 迷っている人ではなく、動いた人から決まります。 もし少しでも ・神保町で出店したい ・低投資で始めたい ・まず1店舗目を成功させたい と考えているのであれば、まずは一度、現地を確認してください。 写真や図面では分からない「導線」「空気感」「立地の強さ」は、現地を見ることでしか判断できません。 内見は無料です。 この一歩で、出店の意思決定が一気に進むケースは非常に多いです。 👉 この物件が残っているうちに、まずはお問い合わせください。

  • 【横浜市港北区 菊名 居抜き】駅徒歩1分/1階15.6坪・賃料50.6万円/和食居酒屋居抜き店舗(東横線・横浜線乗換駅/開業向け)

    【横浜市港北区 菊名 居抜き】駅徒歩1分/1階15.6坪・賃料50.6万円/和食居酒屋居抜き店舗(東横線・横浜線乗換駅/開業向け) New

    2026年03月31日

    賃料

    506,000

    (坪@ 32,435円)

    階数/面積 1階 / 15.6坪
    現業態 居酒屋
    造作代金 4,400,000円
    条件 居抜き
    Point

    菊名駅徒歩1分、1階路面・約15.6坪の和食居酒屋居抜き物件。賃料50.6万円の駅前立地で、東横線・横浜線の乗換駅導線により安定した集客が見込めます。周辺飲食店は約80件と過密ではなく、地域密着型の飲食店開業に適した居抜き店舗です。 ■ 菊名駅徒歩1分|東横線×横浜線の乗換駅立地 本物件は、東急東横線・JR横浜線「菊名駅」徒歩1分という非常に優れた立地に位置しています。 菊名駅は、両路線が交差する乗換駅であり、 東横線では特急・急行が停車する主要駅の一つです。 1日あたりの利用者数は合計で約20万人規模とされ、 横浜方面・渋谷方面・新横浜方面へと人の流れが分散する交通拠点となっています。 そのため、 ・通勤導線 ・乗換導線 ・帰宅導線 といった複数の動きが重なる、飲食店にとって非常に有利な立地です。 ■ 駅徒歩1分×1階|視認性と導線の強さ 駅徒歩1分という距離に加え、本物件は1階店舗です。 この条件は飲食店において重要なポイントであり、 ・通行人の目に入りやすい ・来店ハードルが低い ・看板や外観での集客が可能 といったメリットがあります。 特に菊名のような乗換駅では、 「帰宅途中に立ち寄る」という動きが発生しやすく、 この“導線上にあるかどうか”が売上に直結します。 ■ 約15.6坪|利益設計しやすい実用サイズ 本物件は約15.6坪の店舗で、 ・客席をしっかり確保できる ・ワンオペ〜少人数運営が可能 ・家賃とのバランスが取りやすい という“実用的なサイズ感”です。 大型店舗ほどのリスクを取らずに、 安定した売上と利益を狙える構成が組みやすく、 ・居酒屋 ・和食 ・焼鳥 ・小料理系 などと相性の良い広さです。 ■ 和食居酒屋居抜き|スムーズな開業が可能 本物件は和食居酒屋の居抜きのため、 ・厨房設備の活用 ・内装の流用 ・レイアウトの親和性 が期待できます。 同業態であれば、初期投資を抑えつつ、 比較的短期間での開業が可能です。 出店タイミングを逃さず動ける点は大きなメリットです。 ■ 飲食店約80件の商圏|過密ではない市場 菊名駅周辺(半径500m)には飲食店が約80件存在します。 これは横浜エリアの中では過密とは言えず、 「一定の需要がありながら、競争が激しすぎない」 バランスの取れた市場です。 また和食系は29件と一定数ありますが、 飽和状態ではなく、業態やコンセプト次第で十分にポジションを取れる余地があります。 ■ 賃料50.6万円|立地を考慮すると現実的水準 駅徒歩1分・1階という条件に対して、賃料は50.6万円(税込)。 坪単価ベースでは相場の範囲内であり、 ・売上に対する家賃比率をコントロールしやすい ・無理のない利益設計が可能 という点で、現実的な水準です。 立地の強さを考慮すると、バランスの取れた条件と言えます。 この物件は「駅徒歩1分×乗換駅×1階×約15坪」という、飲食店で成立しやすい条件が揃っており、出店後の売上イメージが描きやすい点が特徴です。 ■ 総評|“成立しやすい条件が揃った駅前物件” 本物件は、 ・菊名駅徒歩1分 ・乗換駅 ・1階店舗 ・約15.6坪 ・和食居酒屋居抜き という、飲食店開業において重要な要素がバランス良く揃っています。 特に、 「大きくリスクを取らずに、安定して回したい」 という方にとっては、検討価値の高い物件です。 この条件の物件は、 ・駅近 ・1階 ・適正サイズ ・居抜き が揃っているため、流通量が多くありません。 特に菊名のような乗換駅では、 出店検討者が常に一定数いるため、 条件が合う物件は比較的早く動く傾向があります。 そしてこういった物件は、 👉 検討している人ではなく、動いた人から決まります。 少しでも ・菊名で出店したい ・駅前で勝負したい ・まず1店舗目を成功させたい と考えているのであれば、 まずは一度、現地をご確認ください。 写真や図面では分からない 「人の流れ」「視認性」「立地の強さ」は、現地でしか判断できません。 内見は無料です。 この条件の物件は、比較している間に決まるケースがほとんどです。 特に菊名のような乗換駅では、駅近×1階×適正サイズの物件は流通が多くありません。 「あとで見よう」と思っている間に無くなるケースも少なくないため、少しでも条件に合う場合は、まず現地でご確認ください。

  • 【杉並区 居抜き】井荻駅徒歩1分/1階路面2.5坪・賃料13.2万円/立ち飲み・一人開業向け居抜き店舗(環八沿い・低資金モデル)

    【杉並区 居抜き】井荻駅徒歩1分/1階路面2.5坪・賃料13.2万円/立ち飲み・一人開業向け居抜き店舗(環八沿い・低資金モデル) New

    2026年03月31日

    賃料

    132,000

    (坪@ 51,968円)

    階数/面積 1階 / 2.54坪
    現業態 居酒屋
    造作代金 1,100,000円
    条件 居抜き
    Point

    井荻駅徒歩1分、環状八号線沿いの1階路面に位置する、約2.5坪の立ち飲み居酒屋居抜き物件のご紹介です。賃料13.2万円(税込)という水準に抑えられており、小資本・一人開業・高回転型の営業に適した店舗です。 本物件は西武新宿線「井荻駅」徒歩1分の駅近立地に加え、交通量の多い環八通り沿いに面しており、通行人からの視認性が確保しやすいポジションです。井荻駅は1日平均約1.7万人が利用する駅で、都心主要駅ほどの規模ではないものの、住宅エリアとして安定した生活導線が形成されており、日常的な飲食需要が見込める点が特徴です。 また、半径500m圏内の飲食店は約61件、そのうち居酒屋は13件と、競合は一定数存在するものの過度に密集している環境ではなく、業態やコンセプト次第でポジションを確保しやすいエリアです。特に本物件のような小規模かつ立ち飲み形式の業態は、回転率と価格設計による売上構築がしやすく、地域密着型の営業と相性の良い立地と言えます。 ■ 約2.5坪というサイズの特徴 本物件は約2.5坪とコンパクトな店舗ですが、この規模だからこそ成立しやすい運営形態があります。 ・初期投資を抑えやすい ・家賃負担が軽い ・一人、または少人数での運営が可能 ・回転率を高めやすい このように、固定費を抑えながら効率的に運営したい方に適した条件です。 ■ 立ち飲み業態との相性 本物件は、立ち飲み・軽飲食・テイクアウト併用など、短時間利用を前提とした業態と相性の良いサイズです。特に環八沿いという立地は、「帰宅途中に立ち寄る」動線が生まれやすく、日常利用を積み重ねた売上構築が期待できます。 ■ 居抜きのため開業しやすい条件 現況は居酒屋の居抜きとなっており、 ・厨房設備の活用 ・内装の流用 ・既存レイアウトの利用 が見込めるため、同業態であれば開業時の負担を抑えつつ、比較的スムーズな立ち上げが可能です。 ■ 賃料13.2万円というバランス 駅徒歩1分・路面という条件でありながら、賃料13.2万円(税込)という設定は、固定費のコントロールがしやすい点で魅力があります。 ・損益分岐点を低く設定しやすい ・価格帯の設計に余裕が持てる ・長期的な運営を見据えやすい このような条件は、開業初期のリスク管理において重要なポイントです。 ■ 総評 本物件は、 ・駅徒歩1分 ・路面店 ・コンパクトサイズ(約2.5坪) ・比較的抑えられた賃料 ・居抜き という、飲食店開業において重要な要素がバランス良く揃った内容です。 特に、 ・まず1店舗目を形にしたい方 ・一人で運営できる規模から始めたい方 ・固定費を抑えた運営を重視する方 にとって検討しやすい物件と言えます。 このような「駅近×小規模×居抜き」の条件は、常に多く出るものではなく、条件が合う場合は検討が進みやすい傾向があります。 内見は無料です。 現地をご確認いただくことで、動線・視認性・運営イメージが具体化し、判断材料が整理されやすくなります。 少しでも条件に合う場合は、まずは現地をご確認ください。 同様の条件で探すと、時間がかかるケースもあります。 この条件の物件は常時出ているものではありません。 条件に合う場合は、まずは現地をご確認ください。

  • 【神奈川区・東⽩楽駅徒歩4分】約14坪・角部屋×1フロア貸しの飲食店居抜き/24時間可

    【神奈川区・東⽩楽駅徒歩4分】約14坪・角部屋×1フロア貸しの飲食店居抜き/24時間可 New

    2026年03月24日

    賃料

    176,000

    (坪@ 12,580円)

    階数/面積 1階 / 13.99坪
    造作代金 無償
    条件 居抜き
    Point

    主要採光⾯:南東向き,飲⾷店可,⾓部屋,1フロア1テナント,居抜き, 24時間利⽤可,⼟曜⽇利⽤可,⼟⽇・祝⽇利⽤可, トイレ,冷蔵庫,給湯,都市ガス,エアコン

  • 【福岡市中央区・唐人町駅徒歩4分】約98坪の大型居抜き/1フロア1テナント・24時間利用可

    【福岡市中央区・唐人町駅徒歩4分】約98坪の大型居抜き/1フロア1テナント・24時間利用可 New

    2026年03月24日

    賃料

    1,016,345

    (坪@ 10,271円)

    階数/面積 1階 / 98.95坪
    現業態 居酒屋
    造作代金 相談
    条件 居抜き
    Point

    飲⾷店可,1フロア1テナント,居抜き,24時間利⽤可,⼟⽇・祝⽇利⽤可, シャワールーム,トイレ,男⼥別トイレ,給湯,個別空調,駐⾞場3台分以上

  • 【東京都東大和市・東大和市駅徒歩2分】99坪大型箱/飲食可/天高2.5m以上・EV付

    【東京都東大和市・東大和市駅徒歩2分】99坪大型箱/飲食可/天高2.5m以上・EV付 New

    2026年03月24日

    賃料

    1,100,000

    (坪@ 11,001円)

    階数/面積 1階 / 99.99坪
    造作代金 無償
    条件 スケルトン
    Point

    東⼤和市駅徒歩2分 飲⾷店可,天井⾼2.5m以上,⼈荷⽤エレベーター

  • 【西東京市・東伏見駅徒歩1分】1フロア1テナント/小料理屋・居酒屋向け 16坪

    【西東京市・東伏見駅徒歩1分】1フロア1テナント/小料理屋・居酒屋向け 16坪 New

    2026年03月23日

    賃料

    300,000

    (坪@ 18,621円)

    階数/面積 1階 / 16.11坪
    現業態 居酒屋
    造作代金 無償
    条件 居抜き
    Point

    駅ホームから⾒えます!!地下スペース(⼀部利⽤可)有 飲⾷店可,1フロア1テナント,居抜き,トイレ,動⼒あり,エアコン

  • 【横浜市・保土ケ谷駅徒歩4分】賃料10万円以下|1階路面・11坪・美容院居抜き・飲食相談可

    【横浜市・保土ケ谷駅徒歩4分】賃料10万円以下|1階路面・11坪・美容院居抜き・飲食相談可 New

    2026年03月22日

    賃料

    99,000

    (坪@ 8,722円)

    階数/面積 1階 / 11.35坪
    造作代金 無償
    条件 居抜き
    Point

    美容院の居抜き物件 美容院以外の⽤途もOKです 飲⾷店可,居抜き

  • 【横浜市・踊場駅徒歩4分】16坪|おしゃれ外観・カフェ向き居抜き・1フロア貸

    【横浜市・踊場駅徒歩4分】16坪|おしゃれ外観・カフェ向き居抜き・1フロア貸 New

    2026年03月22日

    賃料

    168,000

    (坪@ 10,332円)

    階数/面積 1階 / 16.26坪
    造作代金 無償
    条件 居抜き
    Point

    バイク置場有(無料),駐輪場有(無料),主要採光⾯:東向き,飲⾷店可,最上階 ,1フロア1テナント,居抜き,⼟⽇・祝⽇利⽤可,B・T別,専有部分にトイレあり,プロパンガス

  • 【神奈川区・三ツ沢下町駅徒歩2分】駅近|1階路面・1フロア1テナント(12坪)スケルトン※一部設備残置

    【神奈川区・三ツ沢下町駅徒歩2分】駅近|1階路面・1フロア1テナント(12坪)スケルトン※一部設備残置 New

    2026年03月22日

    賃料

    230,000

    (坪@ 19,008円)

    階数/面積 1階 / 12.1坪
    現業態 居酒屋
    造作代金 無償
    条件 スケルトン
  • 【神奈川区・東白楽駅徒歩5分】27坪|1-2階・飲食相談可・スケルトン

    【神奈川区・東白楽駅徒歩5分】27坪|1-2階・飲食相談可・スケルトン New

    2026年03月22日

    賃料

    253,000

    (坪@ 9,220円)

    階数/面積 1.2階 / 27.44坪
    造作代金 無償
    条件 スケルトン
    Point

    飲⾷店可,専有部分にトイレあり,都市ガス

  • 【横浜市西区 西横浜 居抜き】徒歩8分・賃料14.3万円のラーメン店居抜き/住宅街・24時間営業可・カウンター&テーブル完備

    【横浜市西区 西横浜 居抜き】徒歩8分・賃料14.3万円のラーメン店居抜き/住宅街・24時間営業可・カウンター&テーブル完備 New

    2026年03月23日

    賃料

    143,000

    (坪@ 13,516円)

    階数/面積 1階 / 10.58坪
    現業態 ラーメン
    造作代金 相談
    条件 居抜き
    Point

    横浜市西区・西横浜駅徒歩8分、賃料14.3万円の低コストで開業可能なラーメン店居抜き物件。約10.58坪のコンパクト店舗で、カウンター・テーブル席完備の即営業可能な内装。住宅街立地かつ24時間営業可のため、深夜需要や常連客の囲い込みに適した希少物件。横浜エリアで低投資開業を狙う方におすすめです。 横浜市西区・西横浜エリアで、 「この賃料なら成立する」と言えるラーメン店居抜きが出ました。 賃料14.3万円、24時間営業可。 深夜帯の売上を組み込めるため、売上構造を作りやすい条件です。 本物件の最大の特徴は、「賃料14.3万円」という条件にあります。 横浜エリアで飲食店の出店を検討する場合、固定費の高さがハードルになるケースが多い中、本物件は低賃料でスタートできる点が大きな優位性となります。 飲食店経営において、賃料は毎月必ず発生する固定費です。 そのため、売上の波に左右されにくい経営を行うためには、賃料水準が重要な要素となります。本物件はその点において、開業初期のリスクを抑えながら運営できる条件が整っています。 立地は西横浜駅から徒歩8分と、いわゆる駅前立地ではありませんが、その分、周辺は住宅が広がるエリアとなっており、地域住民の利用が中心となる商圏です。 相鉄本線「西横浜駅」は1日あたり約14,000人規模の利用があり、通勤・通学利用を軸とした安定した人流が特徴です。 また、半径500メートル圏内の飲食店数は約120件程度、そのうちラーメン店は約9店舗と、競合過多ではない環境です。 駅前のような競争の激しいエリアと比較すると、価格帯やサービスで差別化を図りやすく、地域密着型の営業が成立しやすいポジションと言えます。 本物件はラーメン店の居抜きであり、厨房設備やレイアウトがそのまま活用可能な状態です。 カウンター席とテーブル席の両方が備わっているため、単身客から複数名利用まで幅広く対応でき、回転と客単価のバランスを取りやすい構成となっています。 さらに約10.58坪というコンパクトな面積は、少人数でのオペレーションが可能であり、人件費のコントロールがしやすい点も特徴です。 ラーメン業態においては、効率的な動線と回転率が収益に直結するため、このサイズ感は実務的にも扱いやすい条件です。 加えて、本物件は24時間営業が可能な点も見逃せません。 住宅街立地であるため、昼・夜に加えて深夜帯の需要も取り込むことができ、営業時間の設計次第で売上機会を最大化することが可能です。特にラーメン業態は深夜需要との相性が良く、周辺に競合が少ない環境であれば、安定した売上構築が見込めます。 駅近ではない立地は一見デメリットに見えますが、 本物件は「低賃料」「住宅密集エリア」「競合環境」「内装付き」という条件が揃っており、出店戦略次第で十分に成立する物件です。 横浜エリアで開業を検討されている方、 低コストでのスタートを重視される方、 ラーメン業態で地域密着型の店舗を展開したい方にとって、現実的かつ検討価値の高い物件となっています。 本物件のように ・賃料15万円以下 ・ラーメン店居抜き ・住宅街立地 ・24時間営業可 この条件が揃う物件は、継続的に市場に出ているわけではありません。 特に横浜エリアにおいては、 低賃料かつ内装付きの飲食店物件は流動が早く、 条件が合致する方から検討が進む傾向があります。 また、この物件は「立地の近さ」で判断するというよりも、 「収益が成立するかどうか」で判断するタイプの物件です。 ・周辺の住宅環境 ・実際の人の流れ ・夜間の雰囲気 ・店舗の視認性 これらは図面や情報だけでは把握しきれず、 現地確認によって具体的な出店イメージが固まるケースが多く見られます。 まだ具体的な計画が固まっていない段階でも問題ありません。 このような条件の物件ほど、「まず現地を見る」ことが有効です。 横浜エリアで出店を検討されている方は、 このタイミングで一度ご確認ください。 内見は早い方が有利です。

  • 【羽村市・小作駅徒歩2分】飲食店可/24坪・角部屋

    【羽村市・小作駅徒歩2分】飲食店可/24坪・角部屋 New

    2026年03月16日

    賃料

    250,000

    (坪@ 10,044円)

    JR青梅線
    小作駅 徒歩2分
    階数/面積 1階 / 24.89坪
    造作代金 無償
    条件 スケルトン
  • 【ひばりヶ丘駅徒歩3分】25坪/飲食店可/スケルトン・居抜き相談可

    【ひばりヶ丘駅徒歩3分】25坪/飲食店可/スケルトン・居抜き相談可 New

    2026年03月16日

    賃料

    375,000

    (坪@ 15,000円)

    階数/面積 1階 / 25坪
    造作代金 無償
    条件 スケルトン
    Point

    飲⾷店可,スケルトン,居抜き,⼟⽇・祝⽇利⽤可

  • 【港区・新橋駅徒歩3分】駅前路面・角地/一棟貸しスケルトン物件

    【港区・新橋駅徒歩3分】駅前路面・角地/一棟貸しスケルトン物件 New

    2026年03月16日

    賃料

    1,314,200

    (坪@ 37,452円)

    階数/面積 1.2.3.4階 / 35.09坪
    現業態 居酒屋
    造作代金 無償
    条件 スケルトン
    Point

    バイク置場近有(13,200円/⽉),飲⾷店可, 最上階,スケルトン,24時間利⽤可, ⼟曜⽇利⽤可,⼟⽇・祝⽇利⽤可,⼤型トラック搬⼊可,国道沿いに⾯する, 都道府県道沿いに⾯する,トイレ2ヶ所,収納スペース,給湯,都市ガス,プロパンガス,冷房,暖房,エアコン,エアコン2台以上,荷積みスペース,内廊下

  • 【武蔵関駅徒歩2分】飲食店可|14坪・角部屋|1フロア1テナント

    【武蔵関駅徒歩2分】飲食店可|14坪・角部屋|1フロア1テナント New

    2026年03月16日

    賃料

    139,000

    (坪@ 9,900円)

    階数/面積 1階 / 14.04坪
    現業態 飲食店以外
    造作代金 無償
    条件 スケルトン
    Point

    飲⾷店可,⾓部屋,1フロア1テナント,⼟曜⽇利⽤可,⼟⽇・祝⽇利⽤可,専 有部分にトイレあり,収納スペース,都市ガス,エアコン

  • 【京王八王子駅徒歩2分】人気エリア/角部屋スケルトン物件(18坪)

    【京王八王子駅徒歩2分】人気エリア/角部屋スケルトン物件(18坪) New

    2026年03月16日

    賃料

    302,500

    (坪@ 16,413円)

    階数/面積 1階 / 18.43坪
    造作代金 無償
    条件 スケルトン
  • 【江戸川区・西葛西駅徒歩4分】飲食店可/34.69坪・1フロア1テナント/フリーレント1ヶ月

    【江戸川区・西葛西駅徒歩4分】飲食店可/34.69坪・1フロア1テナント/フリーレント1ヶ月 New

    2026年03月17日

    賃料

    693,000

    (坪@ 19,976円)

    階数/面積 1階 / 34.69坪
    造作代金 無償
    条件 スケルトン
    Point

    フリーレント:1ヶ⽉,駐輪場有(無料),主要採光⾯:南向き,飲⾷店可,1フロア1テナント,トイレ,都市ガス,動⼒あり,ビルトインエアコン,電動シャッター,⽕災警報器(報知機)

  • 【新井薬師前駅徒歩2分】飲食店可◎角部屋・居抜き20坪/フリーレント1ヶ月

    【新井薬師前駅徒歩2分】飲食店可◎角部屋・居抜き20坪/フリーレント1ヶ月 New

    2026年03月16日

    賃料

    396,000

    (坪@ 19,488円)

    階数/面積 1.2階 / 20.32坪
    造作代金 無償
    条件 居抜き
    Point

    フリーレント:1ヶ⽉(現況渡しのため、内装⼯事期間内で相談可能),主要採光⾯:南向き, 飲⾷店可,⾓部屋,居抜き,⼟曜⽇利⽤可,⼟⽇・祝⽇利⽤可,トイレ,室内洗濯機置場,給湯,エアコン2台以上,インターネット対応,光ファイバー

  • 【神保町駅徒歩1分】飲食店相談可◎スケルトン/24時間利用可・複数路線利用可能

    【神保町駅徒歩1分】飲食店相談可◎スケルトン/24時間利用可・複数路線利用可能 New

    2026年03月16日

    賃料

    1,375,000

    (坪@ 57,387円)

    階数/面積 1階 / 23.96坪
    造作代金 無償
    条件 スケルトン
    Point

    飲⾷店可,スケルトン,24時間利⽤可,⼟⽇・祝⽇利⽤可,都市ガス,動⼒あり,電動シャッター,エレベーター

  • 【広島 八丁堀駅 徒歩2分】えびす通り商店街の1階路面 飲食店居抜き/13.76坪/広島中心部の開業向け店舗

    【広島 八丁堀駅 徒歩2分】えびす通り商店街の1階路面 飲食店居抜き/13.76坪/広島中心部の開業向け店舗 New

    2026年03月16日

    賃料

    462,000

    (坪@ 33,575円)

    階数/面積 1階 / 13.76坪
    造作代金 5,500,000円
    条件 居抜き
    Point

    広島市中区八丁堀駅徒歩2分、人気のえびす通り商店街エリアに位置する1階路面の飲食店居抜き店舗。約13.76坪の使いやすい店舗サイズで、和食・洋食・居酒屋など幅広い業態に対応可能。広島中心部の繁華街で飲食店開業を検討されている方におすすめの居抜き物件です。 広島市中区八丁堀エリアの飲食店居抜き物件です。 広島市中心部の繁華街として知られる八丁堀エリア 広島で飲食店開業を検討される方であれば 一度は候補に挙がる人気エリアです。 本物件は広島電鉄「八丁堀」電停 徒歩2分。 広島市内中心部の主要交通拠点であり、 紙屋町、本通、流川エリアへも徒歩圏内という 利便性の高い立地です。 さらに今回の物件が位置するのは 広島中心部でも特に人気の高い えびす通り商店街エリア。 八丁堀から本通へとつながる 広島有数の商業・飲食エリアであり、 ・飲食店 ・居酒屋 ・バル ・カフェ ・和食店 など多くの飲食店が営業しています。 また八丁堀周辺半径500m圏内には 飲食店 約2,100店舗以上 が集積しており、 広島でもトップクラスの飲食店集積エリアとなっています。 特に ・ビジネス街 ・商業施設 ・ホテル ・繁華街 が重なるエリアのため 昼はビジネスランチ 夜は飲食需要 と、時間帯を問わず 多くの人の流れがあるエリアです。 広島で飲食店を出店する際、 ・紙屋町 ・本通 ・八丁堀 ・流川 などが候補エリアになりますが、 その中でも八丁堀は 商業・ビジネス・繁華街の中心地 として安定した飲食需要が期待できるエリアです。 ■ 希少性◎な1階路面店舗 本物件は 1階路面店舗。 繁華街では 2階以上の店舗も多い中、 1階路面店舗は ・視認性 ・入店しやすさ ・看板効果 という点で大きなメリットがあります。 通行者からの認知も得やすく、新規出店でも集客導線を作りやすい立地です。 特にえびす通り商店街は人通りも多いエリアのため 1階店舗の価値は高く、飲食店出店者からも人気の条件です。 ■ 約13.76坪の使いやすい店舗サイズ 店舗面積は 約13.76坪(約45㎡) 飲食店として非常に扱いやすいサイズ感です。 例えば ・居酒屋 ・和食店 ・焼き鳥店 ・定食店 ・バル ・ビストロ ・ダイニングバー など幅広い業態に対応可能です。 特に個人開業の1号店や少人数オペレーション店舗 として検討しやすいサイズの店舗です。 ■ 居抜き店舗のメリット 本物件は 飲食店の居抜き店舗。 厨房設備や内装を活用できる可能性があり、 大規模な内装工事を行わずに 開業できる場合もあります。 居抜き店舗の最大のメリットは 初期投資を抑えた飲食店開業 が可能な点です。 新規開業の場合、 内装工事や厨房設備に大きな費用がかかるケースもありますが、 居抜き店舗であればその負担を軽減できる可能性があります。 広島中心部で飲食店開業を検討されている方にとって 非常に魅力的な条件の店舗です。 ■ 広島中心部で飲食店開業をお考えの方へ 広島市内で飲食店を出店する場合、 特に人気のエリアは ・本通 ・紙屋町 ・八丁堀 ・流川 などが挙げられます。 その中でも八丁堀エリアは 商業施設 オフィス ホテル 繁華街 が集中するエリアであり、 昼夜ともに安定した飲食需要が期待できます。 さらに本物件は 八丁堀駅徒歩2分 えびす通り商店街 1階路面店舗 という条件のため、 広島中心部で 飲食店居抜き物件を探している方には ぜひ一度ご確認いただきたい物件です。 八丁堀駅徒歩2分。 えびす通り商店街。 さらに 1階路面の飲食店居抜き。 この条件の店舗は市場に出ても早い段階で検討が進むことが多く、 タイミングによっては募集終了となるケースもあります。 広島中心部で飲食店開業を検討されている方は ぜひ一度、現地をご確認ください。 写真や図面だけでは分からない ・立地の雰囲気 ・人の流れ ・通行量 ・周辺の飲食店状況 なども実際に見ることで出店イメージが広がります。 少しでも気になる方はお気軽にお問い合わせください。 内見予約・詳細資料のご請求は下記より受付中です。 「お問い合わせ(無料)」ボタンより お気軽にご連絡ください。

  • 【栄駅徒歩3分】錦3丁目の1階路面飲食店居抜き/15坪・内装美麗/名古屋繁華街の開業向け店舗

    【栄駅徒歩3分】錦3丁目の1階路面飲食店居抜き/15坪・内装美麗/名古屋繁華街の開業向け店舗 New

    2026年03月16日

    賃料

    308,000

    (坪@ 20,533円)

    階数/面積 1階 / 15坪
    造作代金 7,700,000円
    条件 居抜き
    Point

    栄駅徒歩3分、名古屋最大級の繁華街「錦3丁目」に位置する飲食店居抜き物件。1階路面店で視認性も高く、約15坪の使いやすい店舗サイズ。内装状態も良好で、バー・ビストロ・ダイニング・居酒屋など幅広い業態に対応可能。栄エリアで飲食店開業を検討している方におすすめの希少な居抜き店舗です。 名古屋最大級の繁華街として知られる 栄エリア・錦3丁目。 飲食店を開業する方であれば、一度は検討する 名古屋屈指の飲食店集積エリアです。 本物件は 名古屋市営地下鉄「栄駅」徒歩3分。 東山線・名城線が交差するターミナル駅であり、 1日平均乗降客数は約22万人。 名古屋駅に次ぐ利用者数を誇る 中部地方最大級の繁華街の中心エリアです。 さらに栄駅周辺半径500m圏内には 飲食店約1,800店舗以上 が集積しており、 ・ビジネス客 ・観光客 ・ショッピング客 ・夜の繁華街利用客 など、時間帯を問わず 多くの人が行き交うエリアとなっています。 その中でも本物件が位置する 錦3丁目エリアは、 栄の中でも特に飲食店が密集する 名古屋有数の飲食街。 バー、居酒屋、ビストロ、 和食店、ダイニングなどが軒を連ねる 飲食店出店の王道エリアです。 ■ 1階路面店という希少条件 本物件は 1階路面店舗。 繁華街では 2階以上の店舗が多い中、 ・視認性 ・入店ハードル ・看板効果 すべてにおいて優位性のある 希少な1階店舗です。 通行者からの認知も得やすく、 新規出店でも集客導線を作りやすい立地です。 ■ 約15坪の使いやすい店舗サイズ 店舗面積は 約15坪(49.59㎡) 飲食店としては非常に扱いやすいサイズ感です。 例えば ・ビストロ ・イタリアン ・バル ・居酒屋 ・ワインバー ・ダイニングバー ・小規模レストラン など、幅広い業態に対応可能。 特に 少人数オペレーション店舗や 個人開業の1号店 としても非常に人気のサイズです。 ■ 内装状態も良好な居抜き店舗 本物件は 洋食(フレンチ・イタリアン)の居抜き店舗。 店内の雰囲気も良く、 内装状態も比較的良好なため 大規模な内装工事を行わずに 開業できる可能性もあります。 居抜き店舗の最大のメリットである 初期投資を抑えた開業 を実現できる点も魅力です。 ■ 栄エリアで飲食店を開業したい方へ 名古屋で飲食店を開業する場合、 候補に挙がるエリアは主に ・名駅 ・栄 ・錦 ・大須 ですが、 その中でも栄エリアはビジネス街 × 繁華街 × 商業エリアが重なる 名古屋屈指の飲食マーケット。 昼・夜ともに需要があり、安定した飲食需要が期待できるエリアです。 特に錦3丁目は長年多くの飲食店が出店してきた 実績ある飲食立地。 飲食店開業を検討されている方にとって 非常に魅力的なエリアです。 栄駅徒歩3分。 錦3丁目。 さらに 1階路面の飲食店居抜き。 この条件の物件は 市場に出てもすぐに検討が入るケースが多く、 タイミングを逃すと次に出会うまで時間がかかります。 栄エリアで飲食店開業をお考えの方は ぜひ一度、現地をご確認ください。 写真や図面だけでは分からない 立地の雰囲気や人の流れも 実際に見ることでイメージが広がります。 少しでも気になる方はお気軽にお問い合わせください。 内見予約・詳細資料のご請求は下記より受付中です。 「お問い合わせ(無料)」ボタンより お気軽にご連絡ください。 栄・錦エリアは新規物件が出ても すぐに申し込みが入るケースが多く、 条件の良い居抜き店舗は早期に募集終了となることもあります。

  • 【山手線 田端駅 ラーメン居抜き】10坪カウンター路面店舗/明治通り沿い飲食店居抜き(駅徒歩11分)

    【山手線 田端駅 ラーメン居抜き】10坪カウンター路面店舗/明治通り沿い飲食店居抜き(駅徒歩11分) New

    2026年03月18日

    賃料

    220,000

    (坪@ 20,833円)

    JR山手線
    田端駅 徒歩11分
    階数/面積 1階 / 10.56坪
    現業態 ラーメン
    造作代金 3,300,000円
    条件 居抜き
    Point

    山手線「田端駅」徒歩11分、明治通り沿いのラーメン店居抜き路面店舗。約10坪のカウンター型飲食店で小規模ラーメン店や町中華などに最適。北区田端エリアで飲食店居抜き物件をお探しの方、山手線沿線で開業を検討している方におすすめの店舗です。 JR山手線・京浜東北線「田端駅」徒歩11分。 明治通り沿いに位置する、ラーメン店居抜きの路面店舗のご紹介です。 田端駅は山手線沿線の中では落ち着いた住宅エリアとして知られていますが、 その分、地域密着型の飲食店が成立しやすいエリアでもあります。 今回の物件は、明治通りに面した視認性の高い路面店舗で、約10坪のコンパクトな飲食店向き物件です。 現在の店舗はラーメン店として営業していた居抜き店舗で、カウンター中心のレイアウトが特徴です。 小規模ラーメン店や町中華、定食屋、カウンター居酒屋など、比較的コンパクトな店舗運営を想定した業態に適した構造となっています。 特にラーメン店居抜きという点は、同業態での開業を検討している方にとって大きなメリットがあります。 厨房設備やカウンター配置など、ラーメン店の営業に適した造りを活かすことで、 内装工事費を抑えながら比較的スムーズに開業準備を進めることが可能です。 店舗面積は約10.56坪。 近年の飲食店開業では、あえて小規模店舗でスタートするスタイルも増えており、 10坪前後の「小箱店舗」は個人開業の方にも人気のあるサイズです。 カウンター中心の店舗構成であれば、少人数での営業もしやすく、オペレーション効率の良い飲食店づくりが可能です。 田端駅の1日平均乗車人員は約40,479人(2024年度)。 山手線と京浜東北線が利用できる駅であり、通勤利用者や地域住民の生活導線として利用されている駅です。 駅周辺は派手な繁華街ではありませんが、その分、地域密着型の飲食店が長く営業しているエリアでもあります。 また、田端駅半径500m圏内の飲食店数は約106店舗と、山手線沿線としては比較的落ち着いた競争環境です。 そのうちラーメン店は約12店舗とされており、地域の需要を取り込む形で営業している店舗が多い傾向があります。 今回の物件は明治通り沿いという幹線道路に面しているため、 車の通行量が多く、店舗の存在を認知してもらいやすい立地です。 看板やファサードの工夫次第で、ロードサイド店舗としての認知を取りやすい点も特徴の一つです。 山手線沿線で飲食店居抜き物件を探している方の中でも、 ラーメン店や小規模飲食店での開業を検討している方には特に相性の良い物件といえるでしょう。 北区田端エリアで飲食店居抜き物件をお探しの方、山手線沿線で小箱飲食店を開業したい方、 ラーメン店居抜き物件を探している方には、ぜひ一度ご確認いただきたい店舗です。 ※山手線沿線で 「ラーメン店居抜き」 「10坪前後の小箱店舗」 「路面店舗」 この条件が揃う物件は決して多くありません。 特にラーメン店居抜きは、設備やレイアウトの関係で同業態での開業がしやすく、 個人開業の方にも人気のある物件です。 山手線沿線でラーメン店や小規模飲食店の開業を検討している方は、 まずは一度現地をご確認いただくことをおすすめいたします。 内見のご予約も随時受け付けておりますので、ぜひお気軽にお問い合わせください。 北区田端エリアで 「田端 ラーメン居抜き」 「山手線 居抜き」 「10坪前後の飲食店」 「小箱ラーメン店」 「路面店舗」 といった条件で物件を探している方にもおすすめの店舗です。 山手線沿線でラーメン店や小規模飲食店の開業を検討している方は、 ぜひ一度ご確認ください。

  • 【広島市中区・八丁堀徒歩7分】店内・設備も綺麗◎ 薬研堀の貴重な重飲食可能の居抜き物件がでました!

    【広島市中区・八丁堀徒歩7分】店内・設備も綺麗◎ 薬研堀の貴重な重飲食可能の居抜き物件がでました! New

    2026年03月13日

    賃料

    528,000

    (坪@ 20,616円)

    階数/面積 1-3階 / 25.61坪
    造作代金 3,300,000円
    条件 居抜き
    Point

    八丁堀駅 徒歩7分  店内・設備も綺麗◎ 薬研堀の貴重な重飲食可能の居抜き物件がでました! 業種等、是非一度お問い合わせください!

  • 【名古屋市瑞穂区 堀田駅 居抜き】大通り交差点角地の飲食店居抜き店舗/重飲食相談可・ロードサイド立地

    【名古屋市瑞穂区 堀田駅 居抜き】大通り交差点角地の飲食店居抜き店舗/重飲食相談可・ロードサイド立地 New

    2026年03月13日

    賃料

    258,500

    (坪@ 13,757円)

    階数/面積 1階 / 18.79坪
    造作代金 無償
    条件 居抜き
    Point

    名古屋市瑞穂区・堀田駅徒歩10分の飲食店居抜き物件。大通り沿い交差点角地で視認性◎のロードサイド店舗。重飲食相談可能で飲食店開業にも最適。瑞穂区居抜き物件・名古屋居抜き物件をお探しの方におすすめの店舗です。 名古屋市瑞穂区、名鉄名古屋本線「堀田駅」徒歩10分。 大通り沿いの交差点角地という、視認性の高い立地にある飲食店居抜き物件のご紹介です。 瑞穂区は名古屋市の中でも住宅地と商業エリアがバランスよく広がる地域であり、地域密着型の飲食店が成立しやすいエリアとして知られています。 今回の物件は、堀田駅から徒歩圏内という立地に加え、交通量の多い大通りに面したロードサイド店舗であることが大きな特徴です。 さらに交差点角地という条件は、飲食店にとって非常に重要なポイントです。 道路の両方向から視認されるため、看板やファサードの効果が出やすく、通行車両や歩行者の目に入りやすい立地となります。 ロードサイド型の店舗として、認知を取りやすい環境が整っています。 本物件は飲食店の居抜き物件のため、厨房設備や店内レイアウトを活用しながらスムーズに開業準備を進めることが可能です。 新規で一から内装工事を行う場合と比べ、初期投資を抑えながら飲食店開業を目指すことができる点も、居抜き物件ならではの魅力です。 また、本物件は重飲食についても相談可能となっており、業態の幅が広い点も特徴です。 ラーメン店や中華料理店、焼肉店、居酒屋など、火力を必要とする業態にも対応できる可能性があり、 飲食店開業を検討している方にとって選択肢の広がる物件となっています。 堀田駅の1日平均乗降人員は約12,049人とされており、近隣の住宅エリアからの利用者も多い生活導線型の駅です。 周辺には住宅街が広がっているため、地域住民の利用を取り込む飲食店としても期待できるエリアです。 さらに、堀田駅周辺半径500m圏内の飲食店数は約65店舗と、名古屋中心部と比べると競合が多すぎない環境です。 地域密着型の飲食店として長く営業する店舗も多く、地域に根付いた営業スタイルを目指す方にとっては魅力的なマーケットといえます。 名古屋市内で飲食店居抜き物件を探している方の中でも、 ロードサイド店舗を希望される方にとっては、このような大通り沿いの角地物件は数が限られています。 特に瑞穂区エリアで、視認性の高い飲食店居抜き物件は希少性があるため、 名古屋居抜き物件・瑞穂区居抜き物件をお探しの方にはぜひ一度ご確認いただきたい物件です。 名古屋市瑞穂区で飲食店開業を検討している方、堀田駅周辺で居抜き物件をお探しの方、 大通り沿いのロードサイド店舗を希望される方におすすめの飲食店居抜き物件です。 まずは物件の詳細をご確認いただき、ぜひ一度お問い合わせください。 ※名古屋市内で 「重飲食相談可能」 「ロードサイド立地」 「角地の飲食店居抜き」 この条件が揃う物件は決して多くありません。 名古屋居抜き物件、瑞穂区居抜き物件をお探しの方は まずは一度現地をご確認いただくことをおすすめいたします。 名古屋市で居抜き物件をお探しの方、 瑞穂区で飲食店居抜き物件を探している方、 堀田駅周辺で飲食店開業を検討している方におすすめの物件です。 名古屋市で居抜き物件をお探しの方、 瑞穂区で飲食店居抜き物件を探している方、 堀田駅周辺で飲食店開業を検討している方におすすめの物件です。 特に ・名古屋 居抜き物件 ・瑞穂区 居抜き ・堀田駅 居抜き ・名古屋 飲食店 居抜き といった検索で物件を探している方は、 ぜひ一度ご確認ください。

おすすめの居抜き物件・居抜き店舗・店舗物件一覧