ロゴ画像

03-6427-1827

受付時間 9:00 - 18:00

【羽村市・小作駅徒歩2分】飲食店可/24坪・角部屋

情報更新日:2026年03月16日
【羽村市・小作駅徒歩2分】飲食店可/24坪・角部屋
【羽村市・小作駅徒歩2分】飲食店可/24坪・角部屋
【羽村市・小作駅徒歩2分】飲食店可/24坪・角部屋
【羽村市・小作駅徒歩2分】飲食店可/24坪・角部屋

物件概要

階建て

地上4階

階数/面積

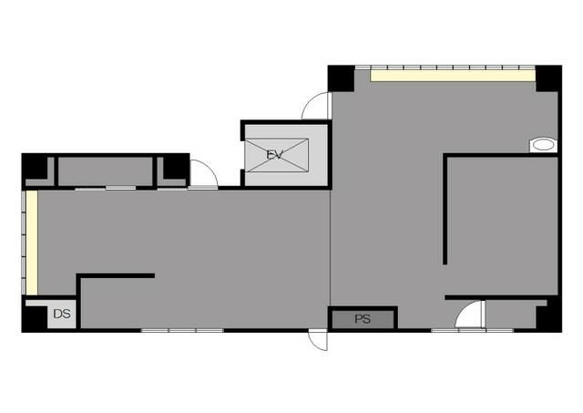
1階 / 約24.89坪 (82.28㎡)

構造

RC

建物名

(会員限定)

契約期間

普通借家 3年

権利金・礼金

1 ヶ月

物件の状態

スケルトン

共益・管理費

0円

償却

0 ヶ月

更新料

0ヶ月

築年数

34年

取引業態

一般

最寄り駅

JR青梅線 小作駅 徒歩2分
JR青梅線 河辺駅 徒歩20分
JR青梅線 羽村駅 徒歩25分

アピールポイント

飲⾷店可,⾓部屋

特記事項・備考

保険等:要 賃貸保証:加⼊要 【㈱いえらぶパートナーズ】・ 初回保証料/⽉額総⽀払額の100%・送⾦⼿数料/⽉額550円(税込)・更新保証料/30,000円 利⽤駅1:JR⻘梅線 ⼩作 徒歩2分

地図・アクセス

詳しい場所はログイン後に表示されます

会員登録(無料)をすると、地図での正確な立地確認や、非公開物件の詳細情報をご覧いただけます。

この条件に似ている物件

この条件に似ている物件は現在ありません。