ロゴ画像

03-6427-1827

受付時間 9:00 - 18:00

【八王子市・北八王子駅徒歩1分】67坪一括貸し/焼鳥居抜き/飲食可/動力あり

情報更新日:2026年04月05日
【八王子市・北八王子駅徒歩1分】67坪一括貸し/焼鳥居抜き/飲食可/動力あり
【八王子市・北八王子駅徒歩1分】67坪一括貸し/焼鳥居抜き/飲食可/動力あり
【八王子市・北八王子駅徒歩1分】67坪一括貸し/焼鳥居抜き/飲食可/動力あり
【八王子市・北八王子駅徒歩1分】67坪一括貸し/焼鳥居抜き/飲食可/動力あり

物件概要

階建て

地上3階

階数/面積

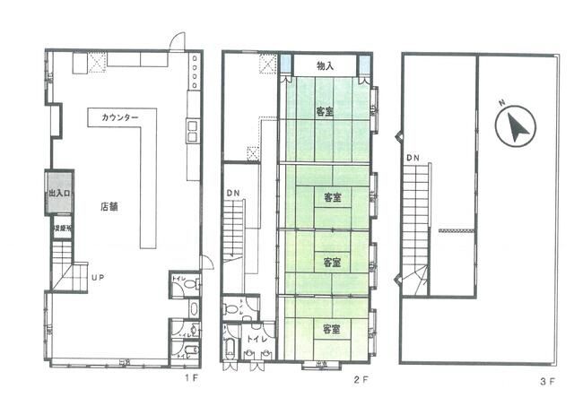
1.2.3階 / 約67.53坪 (223.27㎡)

構造

鉄⾻造

建物名

(会員限定)

契約期間

普通借家 3年

権利金・礼金

1 ヶ月

物件の状態

居抜き

共益・管理費

55,000円

前業態

居酒屋

償却

1 ヶ月

更新料

1ヶ月

築年数

33年

取引業態

一般

最寄り駅

アピールポイント

主要採光⾯:南⻄向き,飲⾷店可,スケルトン,居抜き,動⼒あり,シャッター⾬⼾

特記事項・備考

JR⼋⾼線北⼋王⼦駅に隣接のテナント募集になります。 以前は地域に密着されていた焼き⿃屋さんでした。 ここのテナントでやっていただける会社様を⼼待ちにしております。 是⾮、ご検討下さい。 諸条件はご相談をさせていただきます。 保証⾦償却:解約時1ヶ⽉ 保険等:要 更 新料:新賃料 1ヶ⽉ 賃貸保証:加⼊要 100%〜

地図・アクセス

詳しい場所はログイン後に表示されます

会員登録(無料)をすると、地図での正確な立地確認や、非公開物件の詳細情報をご覧いただけます。