ロゴ画像

03-6427-1827

受付時間 9:00 - 18:00

【府中市・中河原駅徒歩1分】駅至近×131坪の大箱スケルトン 飲食店可

情報更新日:2026年03月26日
【府中市・中河原駅徒歩1分】駅至近×131坪の大箱スケルトン 飲食店可
【府中市・中河原駅徒歩1分】駅至近×131坪の大箱スケルトン 飲食店可
【府中市・中河原駅徒歩1分】駅至近×131坪の大箱スケルトン 飲食店可
【府中市・中河原駅徒歩1分】駅至近×131坪の大箱スケルトン 飲食店可

物件概要

階建て

地上6階

階数/面積

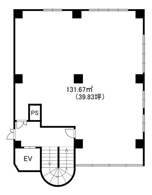
2階 / 約39.83坪 (131.67㎡)

構造

RC

建物名

(会員限定)

契約期間

普通借家 3年

権利金・礼金

0 ヶ月

物件の状態

スケルトン

共益・管理費

33,000円

償却

0 ヶ月

更新料

1ヶ月

築年数

33年

取引業態

一般

最寄り駅

アピールポイント

飲⾷店可,スケルトン,エレベーター

特記事項・備考

※保証⾦飲⾷店の場合1ヶ⽉追加 保険等:要 更新料:新賃料1ヶ⽉ 利⽤駅1:JR南武線 ⻄府 徒歩17分 利⽤駅2:京王線 分倍河原 徒歩19分

地図・アクセス

詳しい場所はログイン後に表示されます

会員登録(無料)をすると、地図での正確な立地確認や、非公開物件の詳細情報をご覧いただけます。

この条件に似ている物件

この条件に似ている物件は現在ありません。