ロゴ画像

03-6427-1827

受付時間 9:00 - 18:00

【相模原市・南橋本駅徒歩2分】1棟貸 約30坪 1フロア1テナント オープンキッチン

情報更新日:2026年02月14日
【相模原市・南橋本駅徒歩2分】1棟貸 約30坪 1フロア1テナント オープンキッチン
【相模原市・南橋本駅徒歩2分】1棟貸 約30坪 1フロア1テナント オープンキッチン
【相模原市・南橋本駅徒歩2分】1棟貸 約30坪 1フロア1テナント オープンキッチン
【相模原市・南橋本駅徒歩2分】1棟貸 約30坪 1フロア1テナント オープンキッチン

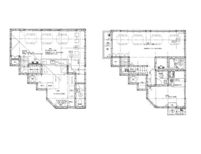
物件概要

階数/面積

1.2階 / 約30.2坪 (99.84㎡)

構造

木造

建物名

(会員限定)

契約期間

普通借家 3年

権利金・礼金

1 ヶ月

物件の状態

居抜き

共益・管理費

0円

償却

0 ヶ月

更新料

1ヶ月

築年数

11年

取引業態

一般

最寄り駅

アピールポイント

飲⾷店可,⾓部屋,最上階,1フロア1テナント,⼟曜⽇利⽤可,⼟⽇・祝⽇利⽤可, B・T別,専有部分にトイレあり,トイレ2ヶ所,多機能トイレ,オープンキッチン, 冷蔵庫,室内洗濯機置場,給湯,エアコン,防犯⽤ガラス,シャッター⾬⼾,電動シャッター,⽕災警報器(報知機)

特記事項・備考

屋内設備(照明・トイレ・ウォシュレット・エアコン・ミニキッチン・⾵呂場等)は残置物となります。 図⾯と相違がある場合は現況を優先とします。残置物につきまして修理・交換・撤去の際は貸主及び管理会社へ事前に相談する事とします。 中古物件の場合、経年による傷・汚れ箇所がある場合がございます。現況有姿となります。 保険等:要 更新料:新賃料 1ヶ⽉ 賃貸保証:加⼊要 初回保証料として賃料総額100%、年間保証料10%、送⾦⼿数料330円掛かります。 駐⾞場備考:4,000円/⽉※⾞種制限がございますので、現地ご確認ください。 1 利⽤駅1:JR横浜線 相模原 徒歩24分 利⽤駅2:JR相模線 橋本 徒歩27分

地図・アクセス

詳しい場所はログイン後に表示されます

会員登録(無料)をすると、地図での正確な立地確認や、非公開物件の詳細情報をご覧いただけます。