ロゴ画像

03-6427-1827

受付時間 9:00 - 18:00

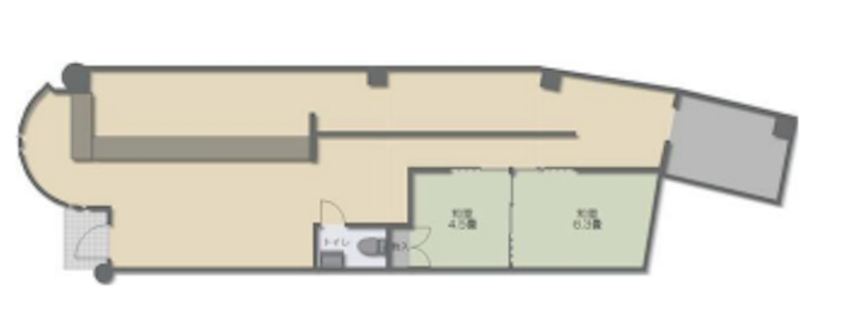
【大阪府大阪市東成区】千日前線 新深江駅から徒歩2分/駅近/業種相談可能/室内備品あり/約28.13坪

情報更新日:2026年01月15日
【大阪府大阪市東成区】千日前線 新深江駅から徒歩2分/駅近/業種相談可能/室内備品あり/約28.13坪 close image

物件概要

階建て

地上8階

階数/面積

1階 / 約28.13坪 (92.99㎡)

構造

建物名

(会員限定)

契約期間

普通借家 2年

権利金・礼金

2 ヶ月

物件の状態

居抜き

共益・管理費

0円

前業態

居酒屋

償却

相談

更新料

相談

築年数

37年

取引業態

一般

最寄り駅

アピールポイント

駅近 飲食店可

特記事項・備考

室内改修工事に300万円掛けました 室内の備品関係全てお使いください。(残置物扱い) 業種相談します。 軽飲食希望・クリニック・介護関係事務所など。 お気軽にお問合せ下さい。 保険等:要2年50,000円 更新料:なし 賃料(月額支払額)の1か月分 利用駅1:近鉄難波・奈良線 今里 徒歩7分

地図・アクセス

詳しい場所はログイン後に表示されます

会員登録(無料)をすると、地図での正確な立地確認や、非公開物件の詳細情報をご覧いただけます。